
Prvi detaljni prikazi mostova potiču iz razdoblja njihovog osuvremenjivanja, dokumentiranog izvještajnim nacrtima u razdoblju od 1840. do 1865. Prethodno tome, poznat je samo jedan idejni nacrt koji pokazuje sistem potezanja pokretnog mosta ispred Novih vrata. To je sistem na poluge (klackalice), oslonjene na funkcionalno ali i reprezentativno oblikovane stupove.

Profil der Zu Carlstadt Neü Erichten Brücken 1740 Jahrs
Mađarski nacionalni arhiv / T 1 No 28
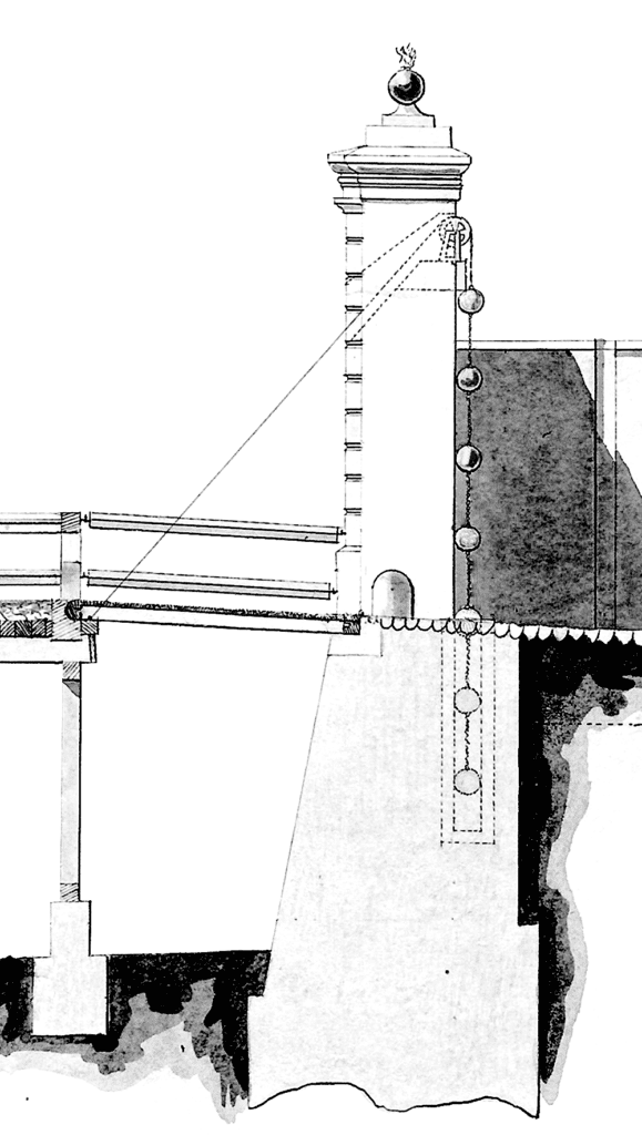
U 19. stoljeću mostovi ispred Starih i Novih vrata dobivaju zidane nosače i metalne dijelove ograde, a kosine šanca su obzidane. Vidljiv je sistem potezanja pokretnih dijelova mosta koji se sastoji od kotača postavljena pri vrhu ulazne konstrukcije i lanaca opterećenih kamenim kuglama.
Za razliku od sistema na polugu, sistem na kotač potvrđen je arheološkim iskapanjima 2018. / 2019. godine kod Novih vrata. Naime, otkrivene su baze masivnih stubova koji su nosili kotač i još neki elementi vidljivi na izvještajnom nacrtu iz 1845. Nova vrata su dobila reprezentativni oblik, pri čemu je uklonjena prijašnja prohodna građevina. U grad se otad ulazilo između dva masivna stuba iza kojih se protežu za oko trećinu niži zidovi, paralelno uz ulični pravac.
Stubovi su oblikovani klasicističkim elementima: imaju robusne baze, tijela raščlanjena karnišama, završne vijence i ukrasne kugle – akroterije. Zidovi dužinom uglavnom nasljeđuju gabarit bočnih zidova prijašnje građevine, ogibni kamen postavljen je uz bazu stuba prema ulici. Ovo novo, „portalno“ lice grada ne skriva svoje utilitarne elemente: zdesna u podzidu je šaht ispusta u šanac.

Detailrapportsplane der Front 4-5 sammt Revelin No 9. Dem Haupteingange beim Neuthor sammt Uberbruckenkungen. / List 1
Ratni arhiv u Beču / Inl.C.VII.No.19

Detailrapportsplane der Front 4-5 sammt Revelin No 9. Dem Haupteingange beim Neuthor sammt Uberbruckenkungen. / List 1
Ratni arhiv u Beču / Inl.C.VII.No.19
Izgled Starih vrata nije se bitnije mijenjao u 19. stoljeću. Zahvaljujući slici iz 1883. i nacrtu iz 1865., vidljivo je da je lanac za potezanje izlazio iz zida kod nadvratnika te s unutarnje strane bio opterećen kuglama.

STARA VRATA 1883. (detalj)
(Uspomena vratah Karlovačke tvrdjave…)
Gradski muzej Karlovac / IKMP-7418G

Detailpläne der Front 1-2 sammt Koffer, den Kriegspulvermagazine im Bastion 2, und dem Haupteingange bei Altthore sammt Uberbruckungen (list 1/6)
Ratni arhiv u Beču / Inl.C.VII.No.16
Premda sistem potezanja mosta ispred Riječkih vrata nije dokumentiran nacrtima, godine 1930. fotografirane su kugle iskopane prilikom asfaltiranja.

Gursky, Zlatko. Karlovac – panorama jednog vremena. Zagreb 1991. Str. 21.
U svakom slučaju, portalna forma Novih vrata dosad nije bila poznata u stručnom diskursu. Stoga se nacrt iz 1845. potrebno koristiti za propitivanje porijekla kamenih elemenata koji se trenutno nalaze u dvorištu starog grada Dubovca. Riječ je o ukupno 4 kamene kugle i jednom profiliranom kamenom ulomku.
Najveća kugla ima promjer oko 65 cm a ostale tri oko 40. U sve su kugle bile umetnute željezne šipke, u nekim slučajevima još vidljive. Svaka kugla je bila obrađivana na dva suprotna kraja, što je u skladu s mogućnošću da su bile nizane na lanac.
Zanimljivo je da su ove kugle povremeno bile predstavljane kao utezi pokretnog mosta. No smatralo se da je taj most bio na Starom gradu Dubovcu, što je u neskladu s postojećim povijesnim izvorima: ništa takvo ne može se vidjeti na detaljnom nacrtu kojega 1777. izrađuje vojni inženjer J. A. Krey. Također, svojom veličinom ovi su ulomci u neskladu sa nevelikim kaštelom kakav je Dubovac i njemu srodni spomenici.





Horvat, Zorislav; Kruhek, Milan. 1979. Stari gradovi i utvrđenja u obrani Karlovca u XVI i XVII stoljeću. Karlovac 1579 – 1979. Ur. Zatezalo, Đuro; Majetić, Tomislav; Miholović, Katica. Historijski arhiv u Karlovcu. Karlovac. 59.-79. Str. 64
Naposljetku, otvoreno je i pitanje jednog kamenog ulomka iz dubovačkog dvorišta. Još 1997. bio je podnožjem kamenog stola o kojemu danas svjedoči tek jedna fotografija iz iste godine. Stol na fotografiji je već oštećen i okrenut naopačke, a sačuvani ulomak izgleda kao spolij (dio starije konstrukcije upotrebljen kao građevinski materijal za novu) kojeg se po boji i teksturi može jasno razlikovati od ostalih dijelova, okrugle ploče i povezujećeg cilindričnog elementa.


Nacrt Novih vrata iz 1845. je jedini poznati dokument koji smješta sve ove kamene elemente u zajednički kontekst: ulomak bi mogao biti akroterij s ulaznog stuba, a kugle utezi. Naravno, nemoguće je ovo pitanje privesti konačnom zaključku, budući da su spomenuti elementi već dugo dislocirani, a nigdje nije zabilježeno na koji su način izvorno ili sekundarno korišteni. Ipak su za sva troja vrata Karlovačke zvijezde pronađeni nacrtni odnosno fotografski dokazi o korištenju utega u obliku kugli, pri čemu nije naodmet podsjetiti da se dislocirani dijelovi građevina često koriste kao spoliji.
Gursky, Zlatko. 1991. Karlovac – panorama jednog vremena. Zagreb
Horvat, Zorislav; Kruhek, Milan. 1979. Stari gradovi i utvrđenja u obrani Karlovca u XVI i XVII stoljeću. Karlovac 1579 – 1979. Ur. Zatezalo, Đuro; Majetić, Tomislav; Miholović, Katica. Historijski arhiv u Karlovcu. Karlovac. 59.-79. Str. 64
Hrvatski kartografi: biografski leksikon. 2009. Priredili Lapaine, Miljenko; Kljajić, Ivka. Golden marketing-Tehnička knjiga; Državna geodetska uprava Republike Hrvatske. Zagreb.
Jakšić, Sonja. 1997. Stari grad Dubovac – idejno rješenje parternog uređenja dvorišta. Rukopis.